Dịch vụ thiết kế & BIM modeling thiết bị
Trong bối cảnh nhân lực ngành xây dựng Nhật Bản già hoá và thiếu hụt nhân lực nghiêm trọng – đặc biệt ở mảng thiết bị, việc triển khai BIM và làm chủ các phần mềm mới như Revit, Rebro trở thành rào cản lớn đối với đội ngũ kỳ cựu, trong khi tuyển dụng nhân sự trẻ cũng ngày càng khó khăn.
Dịch vụ thiết kế & BIM modeling MEP của chúng tôi ra đời để giải quyết trọn vẹn bài toán đó: đội ngũ kỹ sư trẻ, giàu nhiệt huyết, thành thạo Revit và Rebro, đã từng làm việc tại các doanh nghiệp thiết bị hàng đầu tại Nhật Bản. Chúng tôi cam kết cung cấp dịch vụ có chất lượng tương đương tiêu chuẩn Nhật Bản, tiến độ đáng tin cậy, chi phí tối ưu, và đã được kiểm chứng bởi những khách hàng khó tính nhất.
Dịch vụ thiết kế & BIM modeling MEP của chúng tôi ra đời để giải quyết trọn vẹn bài toán đó: đội ngũ kỹ sư trẻ, giàu nhiệt huyết, thành thạo Revit và Rebro, đã từng làm việc tại các doanh nghiệp thiết bị hàng đầu tại Nhật Bản. Chúng tôi cam kết cung cấp dịch vụ có chất lượng tương đương tiêu chuẩn Nhật Bản, tiến độ đáng tin cậy, chi phí tối ưu, và đã được kiểm chứng bởi những khách hàng khó tính nhất.
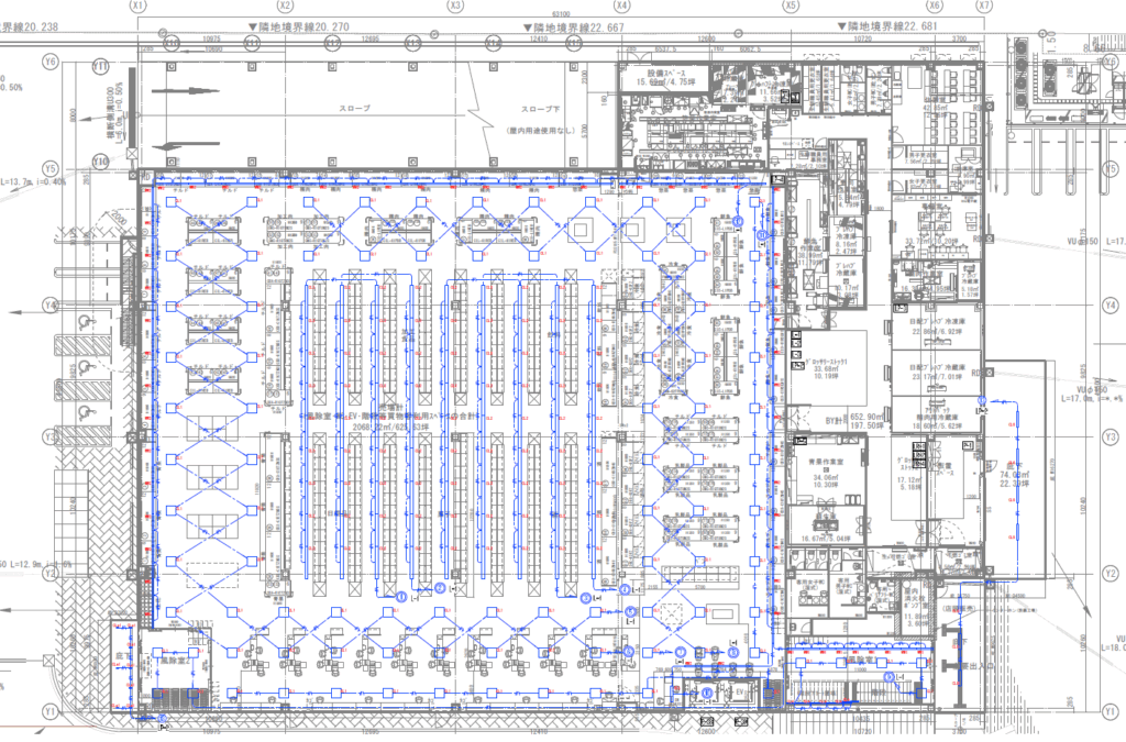
Tổng quan về dịch vụ thiết kế & BIM Modeling thiết bị:
➤Nghiệp vụ thiết kế thiết bị (cơ & điện)
・Thiết kế, dựng mô hình BIM, xuất bản vẽ thiết kế
・Tập trung chính vào mảng tòa nhà văn phòng, cửa hàng ăn, siêu thị …
➤Nghiệp vụ modeling (cơ & điện)
・Dựng mô hình, tạo bản vẽ thi công, bản vẽ xem xét phương án thiết bị
・Có thể đối ứng với mọi loại công trình (S, RC), mọi quy mô
➤Nghiệp vụ tính khối lượng và dự toán
※Các phần mềm sử dụng: Revit, Rebro
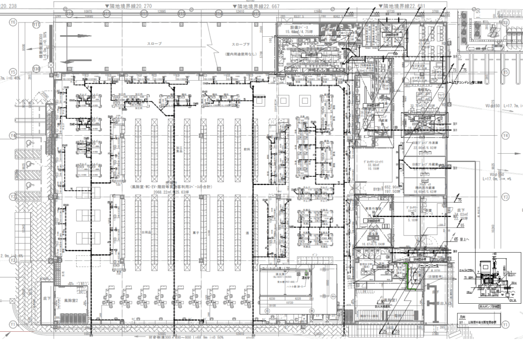
➤Nghiệp vụ thiết kế thiết bị (cơ & điện)
・Thiết kế, dựng mô hình BIM, xuất bản vẽ thiết kế
・Tập trung chính vào mảng tòa nhà văn phòng, cửa hàng ăn, siêu thị …
➤Nghiệp vụ modeling (cơ & điện)
・Dựng mô hình, tạo bản vẽ thi công, bản vẽ xem xét phương án thiết bị
・Có thể đối ứng với mọi loại công trình (S, RC), mọi quy mô
➤Nghiệp vụ tính khối lượng và dự toán
※Các phần mềm sử dụng: Revit, Rebro
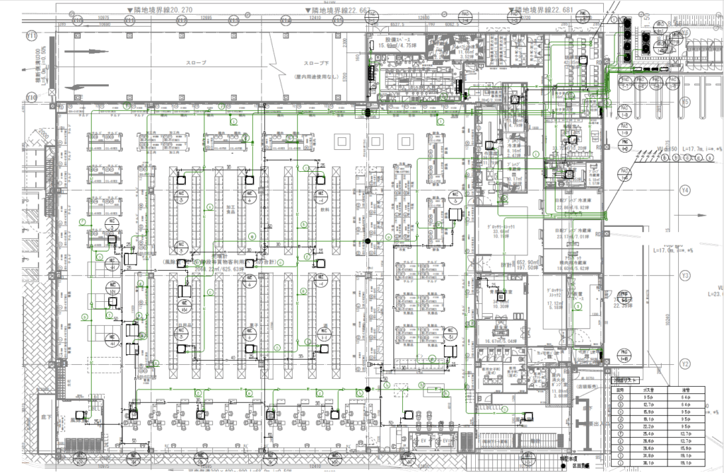
MEP BIM model
